Engineering
Engineering Details
Engineering Documents
Blurred Lines
Blurred Lines
Performance of Short-Term Beach Erosion Mitigation
ENGEO compares and contrasts the performance of short-term beach erosion solutions at Capostrano Bay Community in Dana Point, California.
Blurred Lines
Blurred Lines
Muscle Wall receives first FM Approval for 4-foot flood barrier
Muscle Wall is the only product on the market to receive FM Approval for a flood control barrier at 4 feet high.
Blurred Lines
Blurred Lines
US Army Corps of Engineers 4-foot Muscle Wall Flood Barrier Evaluation
4-Foot Muscle Wall was recently put through a series of rigorous tests by the United States Army Corps of Engineers in order receive FM Approval.
Blurred Lines
Blurred Lines
Performance as a multi-use Best Management Practice
ENGEO evaluated Muscle Wall's performance as a sediment perimeter control, temporary retaining wall, and liquid waste containment barrier.
Blurred Lines
Blurred Lines
Muscle Wall Applications for Post-Fire Mitigation
"This multi-use tool is a proven best management practice (BMP) for post-fire applications in Utah and for hillside grading projects in California."
Blurred Lines
Blurred Lines
Performance for Stormwater & Erosion Control on Steep Slopes
The portable barrier wall product has proven to be an effective BMP for hillside grading construction projects across California, and for post-fire applications in Utah.
Blurred Lines
Blurred Lines
Resilient Stormwater & Erosion Control Management
"MW basins were successful at detaining large volumes of stormwater and sediment while remaining stable for varying slope steepnesses, surface types, and barrier configurations."
Blurred Lines
Sliding & Tipping Analysis of 4-Foot System on Asphalt
The objective of this analysis is to determine the factors of safety for the 4-Foot system deployed on asphalt with foam liner seal and one row of sand bags with and without the optional skid plate.
Blurred Lines
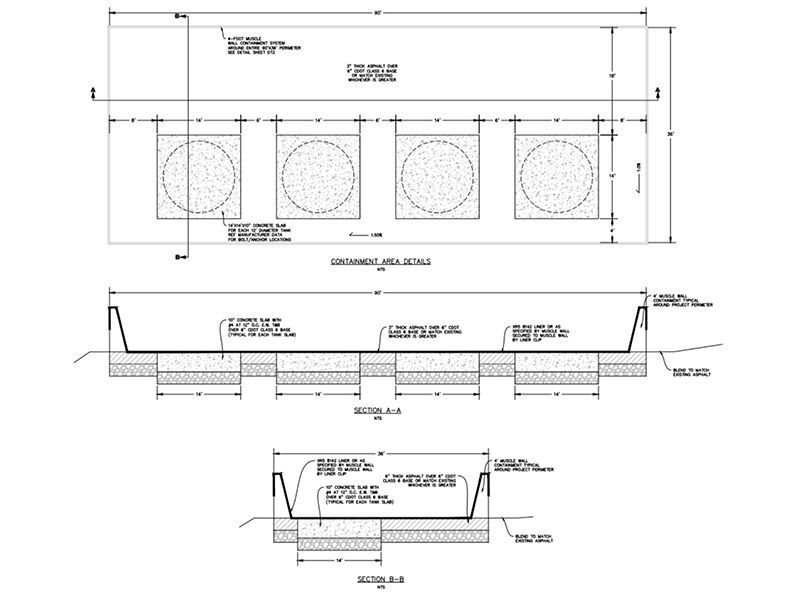
Sliding & Tipping Analysis of 4-Foot Containment System on Dirt/Gravel
This document provides a report level overview of the analysis and testing performed for the 4-Foot system utilized in a containment application.
Blurred Lines
Homeowner Flood Control Case Study
After battling yearly flooding for five years, Kenneth Kirkwood purchased Muscle Wall as a temporary flood control solution for his home.
Blurred Lines
Logan River Golf Course Flood Control Case Study
After a catastrophic flooding event costing the city over $1 million, Muscle Wall was purchased as a temporary levee-raising solution during high waters.
Blurred Lines
Orange & Rockland Utilities Flood Control Case Study
Following the devastating effects of Hurricane Sandy in 2012, Orange & Rockland Utilities has Muscle Wall deployed year-round protecting two of their substations.
Blurred Lines
Coastal Erosion Case Study at Capistrano Beach, CA
"Muscle Wall is the perfect solution to combat the threat of coastal erosion when permanent structures are out of the question."
Blurred Lines
Free Body Diagram & Summary of Forces | 8-Foot System
The included diagram shows the profile loading of a single 8-Foot Muscle Wall segment based on the included assumptions.
Blurred Lines
Performance Testing of Foam-Filled Muscle Wall
The Muscle Wall containment system was tested at the Muscle Wall field testing site located in Logan, Utah. The purpose of the testing was to acquire information pertaining to the foam filled Muscle Wall capabilities when used for containment.



























